Nieuw in verkoop:Damenweg 9, 6027 NK Soerendonk - Foto
Nieuw in verkoop
+50

Damenweg 9 6027 NK Soerendonk € 398.000,- k.k.

  • Woonhuis
  • 5 kamers
  • 4 slaapkamers
  • 1 badkamers
  • Bouwjaar 1962
  • 950 m² perceeloppervlakte
  • 156 m² gebruiksoppervlakte
  • E Energielabel E

Beschrijving

Algemeen:

Op een ruim perceel van ca. 950 m² vindt je deze karakteristieke halfvrijstaande woonboerderij met garage, berging en diepe vrij gelegen achtertuin. Deze verrassend ruime woning is geheel naar eigen wens en smaak te moderniseren en te verduurzamen.
Alle dorpse voorzieningen, sportpark en het mooie buitengebied van Soerendonk op loopafstand! Snelweg A2 Eindhoven - Maastricht bereikbaar binnen 5 minuten.

Indeling:

Begane grond
Hal met meterkast; woonkamer; slaapkamer met wastafel; eetkamer met trapopgang naar de verdieping; trapkast; keuken v.v. een eenvoudige keukeninrichting met keukenapparatuur en witgoedaansluitingen; geheel licht betegelde badkamer v.v. inloopdouche, wastafel en wc; bijkeuken met keukenblok; betegelde toiletruimte met wc; tuinkamer / serre met toegang tot de achtertuin.

Verdieping
Overloop; 3 slaapkamers waarvan 2 met muurkast; berging met CV HR combiketel. Vanuit de ruimte heb je toegang tot de vliering; berging 2.

Buiten:

De tuin is aangelegd met bestrating, gazon en borders.
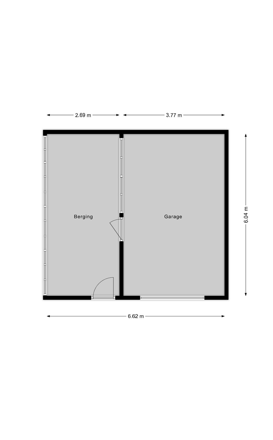
De garage heeft een oppervlakte van ca. 23 m² en beschikt over een kantelpoort. De aangebouwde berging is ca. 16 m² groot.
Het perceel is geheel omheind en heeft aan de achterzijde een vrij landelijk uitzicht.

Bijzonderheden:

- Energielabel E;
- Deels v.v. dubbel glas;
- 4 slaapkamers;
- Gemakkelijk en snel bereikbaar vanaf de A2 Eindhoven - Maastricht;
- Snelle aanvaarding mogelijk.

Kaart

Kenmerken

Overdracht

Referentienummer
00230
Vraagprijs
€ 398.000,- k.k.
Status
Nieuw in verkoop
Aanvaarding
In overleg
Aangeboden sinds
Woensdag 4 februari 2026

Bouw

Type object
Woonhuis, woonboerderij, half vrijstaande woning
Soort bouw
Bestaande bouw
Bouwperiode
1962
Dakbedekking
Dakpannen
Type dak
Mansardedak
Isolatievormen
Gedeeltelijk dubbel glas

Oppervlaktes en inhoud

Perceeloppervlakte
950 m²
Woonoppervlakte
155,9 m²
Inhoud
651 m³
Oppervlakte overige inpandige ruimten
13,4 m²
Oppervlakte externe bergruimte
40 m²
Oppervlakte gebouwgebonden buitenruimte
11,9 m²

Indeling

Aantal bouwlagen
2
Aantal kamers
5 (waarvan 4 slaapkamers)
Aantal badkamers
1 (en 1 apart toilet)

Locatie

Ligging
Platteland

Tuin

Type
Achtertuin
Hoofdtuin
Ja
Oriëntering
West
Heeft een achterom
Ja
Staat
Dient nog te worden aangelegd.
Tuin 2 - Type
Zijtuin
Tuin 2 - Oriëntering
Noorden
Tuin 2 - Staat
Normaal
Tuin 3 - Type
Voortuin
Tuin 3 - Oriëntering
Oosten
Tuin 3 - Staat
Normaal

Energieverbruik

Energielabel
E

CV ketel

Warmtebron
Gas
Combiketel
Ja
Eigendom
Eigendom

Uitrusting

Warm water
CV-ketel
Verwarmingssysteem
Centrale verwarming
Badkamervoorzieningen
Inloopdouche
Toilet
Wastafel
Parkeergelegenheid
Vrijstaande stenen garage
Heeft kabel-tv
Ja
Tuin aanwezig
Ja
Heeft een garage
Ja
Heeft rolluiken
Ja
Heeft schuur/berging
Ja
Heeft een dakraam
Ja

Kadastrale gegevens

Kadastrale aanduiding
Soerendonk B 2881
Perceeloppervlakte
950 m²
Omvang
Geheel perceel
Eigendomsituatie
Eigen grond

Brochure(s) en overige bijlagen

Brochure - Damenweg 9 - Soerendonk.pdf Download
Label.pdf Download