+64

Nieuwstraat 95 6021 HR Budel € 649.000,- k.k.

  • Woonhuis
  • 7 kamers
  • 7 slaapkamers
  • 2 badkamers
  • Bouwjaar 1903
  • 1.600 m² perceeloppervlakte
  • 377 m² gebruiksoppervlakte
  • D Energielabel D

Beschrijving

Algemeen:

Op een fijne centrale locatie in het dorp gelegen royale vrijstaande woonboerderij (ca. 1.800 m³!) met tuin. Het perceel heeft een oppervlakte van ca. 1.600 m². De boerderij is geheel naar eigen wens en smaak te moderniseren en verduurzamen.
Het unieke is dat dit object zeer geschikt is voor o.a. beroep aan huis, huisvesting voor een groot gezin, splitsing in 2 wooneenheden, B&B...... etc.
Volop mogelijkheden dus!

Indeling:

Begane grond
Hal met trapopgang naar de 1e verdieping; toiletruimte met wc en fonteintje; woonkamer; portaal; koele voorraadruimte; speelkamer / slaapkamer; werkkamer / slaapkamer; ruime leefkeuken met een degelijke keukeninrichting met inbouwapparatuur en een granieten werkblad; portaal met toegang tot het overdekte terras; betegelde toiletruimte met wandcloset en fonteintje; betegelde badkamer v.v. inloopdouche, meubel met wastafel, witgoedaansluitingen en de CV HR combiketel;

De voormalige werkruimte aan de linkerzijde van de boerderij is ingedeeld met o.a. een grote keuken (voormalige kantine), 2 (slaap)kamers (voormalige kantoren), berging, hobbyruimte , toiletruimte en een extra bijkeuken. Tevens is er een inpandige berging aanwezig die bereikbaar is vanuit het overdekte terras.

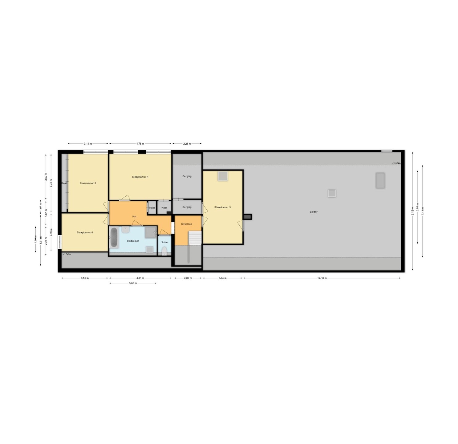
1e verdieping
Overloop met muurkast; 4 slaapkamers waarvan 1 met inbouwkast en 1 met muurkast; badkamer v.v. ligbad, douchecabine, wastafel, meubel en een dakvenster; toiletruimte met wc; berging; royale open zolderruimte.

Buiten:

De tuin rondom de woning is aangelegd met borders, gazon en betrating. Aan de rechterzijde van de boerderij bevindt zich een brede achterom met poort. Aan de linkerzijde van de boerderij kan later via een nog aan te leggen weg een tweede achterom worden gerealiseerd.

Bijzonderheden:

- Energielabel in aanvraag;
- Houten kozijnen met dubbel en enkel glas;
- Woningsplitsing tot 2 wooneenheden mogelijk!
- Naar eigen wens te moderniseren en verduurzamen;
- 4 slaapkamers op de 1e verdieping. Ook slapen op de begane grond mogelijk!
- 2 Badkamers;
- GO wonen maar liefst ca. 377 m²;
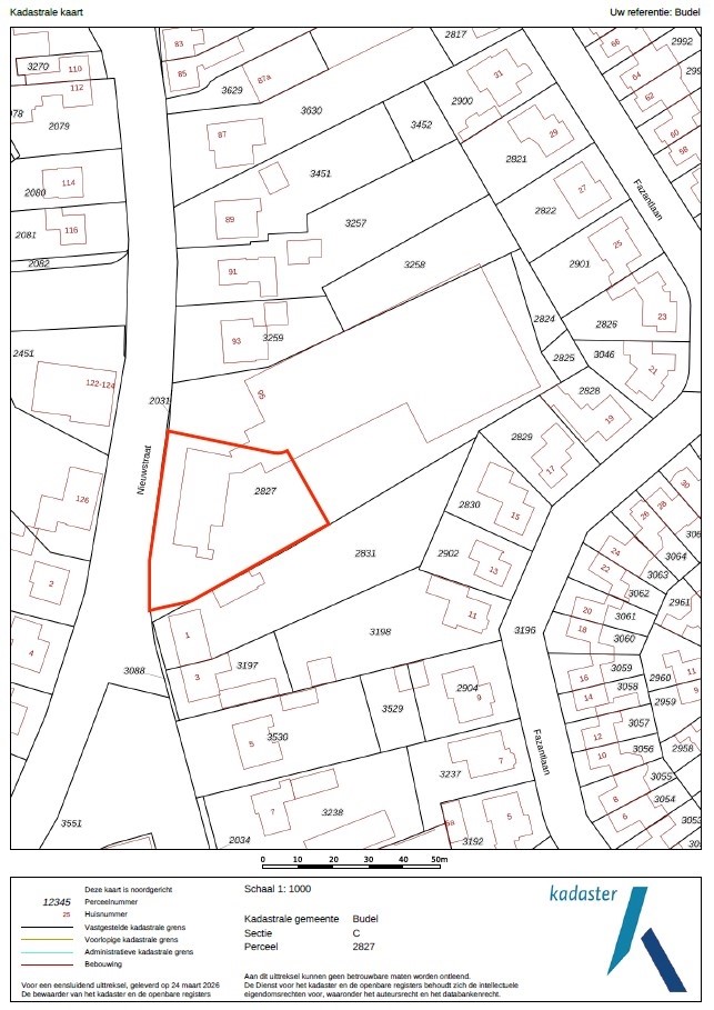
- Het te verkopen perceel loopt achter de houten schutting verder door;
- Perceel ca. 1.600 m²;
- Het perceel dient nog gesplitst te worden en ingemeten te worden, getoonde maten en omkadering zijn bij benadering;
- Let op: de laatste foto is gemaakt met behulp van AI;
- Centrale ligging met in de nabijheid sportpark, medisch centrum en het gezellige centrum van Budel;
- De naast- en achtergelegen kassen en schuur zullen gesloopt worden en plaatsmaken voor woningbouw;
- Aanvaarding in overleg.

Kaart

Kenmerken

Overdracht

Referentienummer
00236
Vraagprijs
€ 649.000,- k.k.
Aanvaarding
In overleg
Aangeboden sinds
Dinsdag 24 maart 2026
Laatste wijziging
Dinsdag 14 april 2026

Bouw

Type object
Woonhuis, woonboerderij, vrijstaande woning
Soort bouw
Bestaande bouw
Bouwperiode
1903
Dakbedekking
Bitumen
Dakpannen
Type dak
Zadeldak
Isolatievormen
Gedeeltelijk dubbel glas
HR-glas
Muurisolatie
Vloerisolatie

Oppervlaktes en inhoud

Perceeloppervlakte
1.600 m²
Woonoppervlakte
377,1 m²
Inhoud
1.819 m³
Oppervlakte overige inpandige ruimten
104,3 m²
Oppervlakte gebouwgebonden buitenruimte
35,5 m²

Indeling

Aantal bouwlagen
2
Aantal kamers
7 (waarvan 7 slaapkamers)
Aantal badkamers
2 (en 1 apart toilet)

Locatie

Ligging
Aan drukke weg

Tuin

Type
Tuin rondom
Oriëntering
Oosten
Heeft een achterom
Ja
Staat
Goed onderhouden

Energieverbruik

Energielabel
D

CV ketel

Warmtebron
Gas
Combiketel
Ja
Eigendom
Eigendom

Uitrusting

Verwarmingssysteem
Centrale verwarming
Vloerverwarming (gedeeltelijk)
Badkamervoorzieningen Badkamer 2
Douche
Ligbad
Wastafel
Heeft kabel-tv
Ja
Glasvezelaansluiting aanwezig
Ja
Tuin aanwezig
Ja
Beschikt over een internetverbinding
Ja
Heeft rolluiken
Ja

Kadastrale gegevens

Kadastrale aanduiding
Budel C 2827
Perceeloppervlakte
1.600 m²
Omvang
Deel perceel
Eigendomsituatie
Eigen grond

Brochure(s) en overige bijlagen

Label.pdf Download
Brochure - Nieuwstraat 95 - Budel.pdf Download