Verkocht onder voorbehoud:Maarheezerweg 5, 6021 CN Budel - Foto
Verkocht onder voorbehoud
+56

Maarheezerweg 5 6021 CN Budel € 529.000,- k.k.

  • Woonhuis
  • 4 kamers
  • 3 slaapkamers
  • 1 badkamers
  • Bouwjaar 1931
  • 785 m² perceeloppervlakte
  • 157 m² gebruiksoppervlakte
  • B Energielabel B

Beschrijving

Algemeen:

Achter deze fraaie karakteristieke gevel gaat een moderne levensloopbestendige woning schuil. Op de begane grond bevindt zich een fijne leefruimte met tuingerichte open keuken, woonkamer, riante slaapkamer en aansluitend badkamer. Op de verdieping zijn 2 slaapkamers aanwezig.
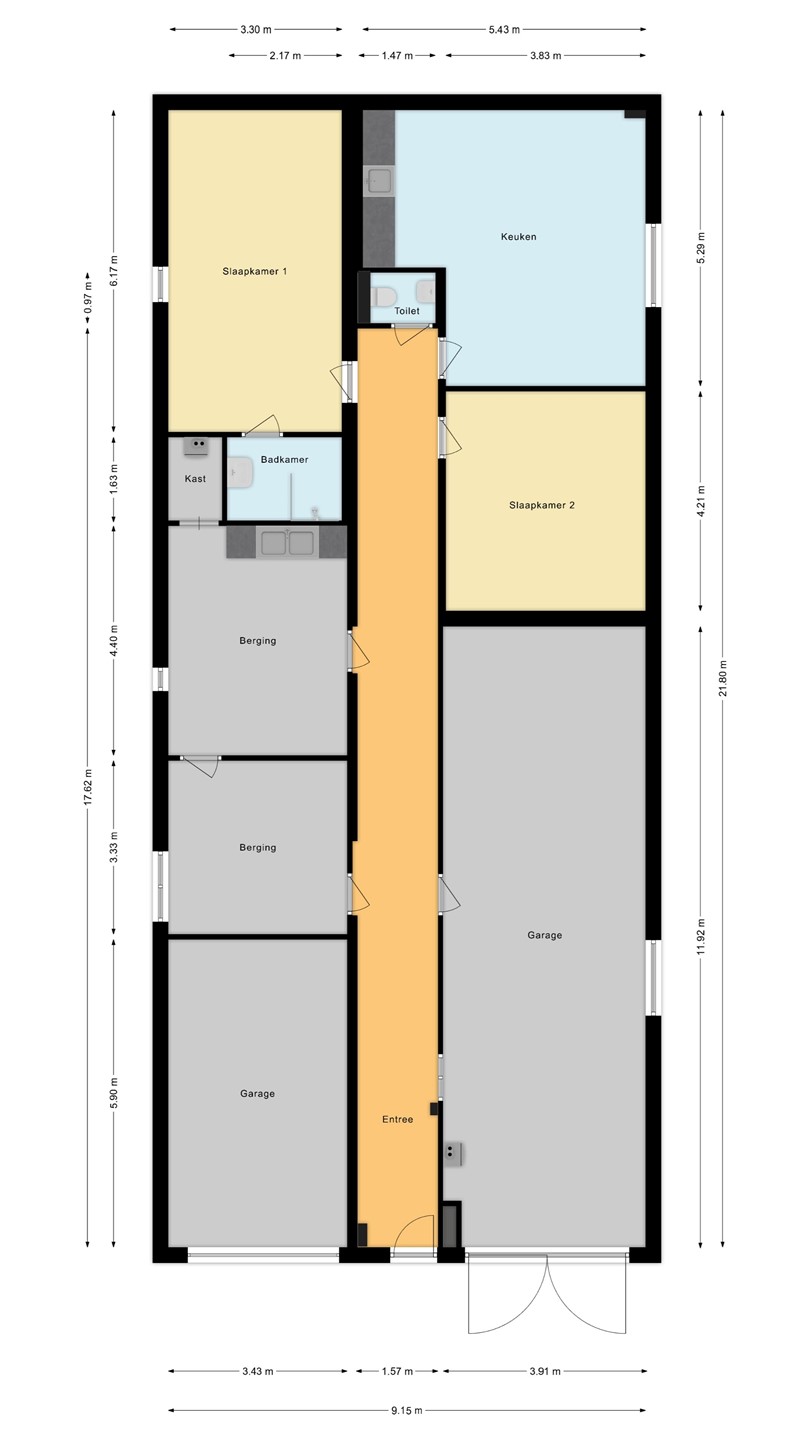
Het multifunctionele bijgebouw is ingedeeld met een carport, garage, slaapkamer, badkamer, keuken en diverse bergruimten.

Indeling:

Begane grond
Hal met meterkast en trapopgang naar de 1e verdieping; lichte woonkamer v.v. gashaard; verdiepte trapkast; open keuken v.v. een lichte keukeninrichting met kookeiland en inbouwapparatuur. Vanuit de keuken heb je middels dubbel openslaande tuindeuren direct toegang tot de tuin; gang; bijkeuken v.v. inbouwkasten, witgoedaansluitingen en de CV HR combiketel. vanuit de bijkeuken heb je toegang tot de tuin; licht betegelde toiletruimte met wandcloset en fonteintje; royale badkamer v.v. een ligbad, ruime inloopdouche, meubel met wastafel en een wandcloset; slaapkamer met toegang tot de tuin.

1e verdieping
Overloop; 2 slaapkamers met muurkast; kledingkamer.

2e verdieping
Open zolderruimte te bereiken via een mangat vanuit de overloop op de 1e verdieping.

Bijgebouw:

Het vrijstaande en deels geïsoleerde bijgebouw heeft een totale oppervlakte van ca. 199 m². Deze multifunctionele ruimte is nu ingedeeld met o.a. een carport, garage voor het stallen van meerdere auto's, 2 bergingen, fitnessruimte, woonkamer / keuken met keukeninrichting, slaapkamer, moderne badkamer en een aparte toiletruimte.

Buiten:

De tuin is onderhoudsvriendelijk aangelegd en v.v. siergrind, borders met aanplant en verlichting, 2 terrassen met overkapping en een jacuzzi met overkapping. De tuin is volledig omheind en bereikbaar via een brede achterom met elektrische poort (ideaal met caravan, camper of aanhanger) en een looppoort.

Bijzonderheden:

- Energielabel B;
- 32 zonnepanelen aanwezig;
- Nagenoeg geheel geïsoleerd;
- Houten kozijnen met HR++ beglazing;
- Begane grond grotendeels v.v. vloerverwarming;
- Badkamer en slaapkamer op de begane grond aanwezig;
- 3 slaapkamers;
- Groot multifunctioneel bijgebouw;
- Fraai aangelegde tuin met diverse overkappingen, jacuzzi en beregening!
- Ligging nabij uitvalswegen, centrum en het buitengebied;
- Aanvaarding in overleg.

Kaart

Kenmerken

Overdracht

Referentienummer
00217
Vraagprijs
€ 529.000,- k.k.
Status
Verkocht onder voorbehoud
Aanvaarding
In overleg
Aangeboden sinds
Dinsdag 9 december 2025
Laatste wijziging
Woensdag 21 januari 2026

Bouw

Type object
Woonhuis, eengezinswoning, half vrijstaande woning
Soort bouw
Bestaande bouw
Bouwperiode
1931
Dakbedekking
Bitumen
Dakpannen
Type dak
Samengesteld
Isolatievormen
Dakisolatie
HR-glas
Muurisolatie
Vloerisolatie

Oppervlaktes en inhoud

Perceeloppervlakte
785 m²
Woonoppervlakte
157,4 m²
Inhoud
613 m³
Oppervlakte externe bergruimte
199 m²

Indeling

Aantal bouwlagen
2
Aantal kamers
4 (waarvan 3 slaapkamers)
Aantal badkamers
1 (en 1 apart toilet)

Locatie

Ligging
Aan drukke weg

Tuin

Type
Achtertuin
Hoofdtuin
Ja
Oriëntering
Noord west
Heeft een achterom
Ja
Staat
Prachtig aangelegd
Tuin 2 - Type
Voortuin
Tuin 2 - Oriëntering
Oosten
Tuin 2 - Staat
Goed onderhouden

Energieverbruik

Energielabel
B

CV ketel

CV ketel
Neft
Warmtebron
Gas
Bouwjaar
2012
Combiketel
Ja
Eigendom
Eigendom

Uitrusting

Warm water
CV-ketel
Verwarmingssysteem
Centrale verwarming
Gashaard
Vloerverwarming (gedeeltelijk)
Ventilatie methode
Mechanische ventilatie
Badkamervoorzieningen
Inloopdouche
Ligbad
Toilet
Wastafel
Wastafelmeubel
Parkeergelegenheid
Vrijstaande houten garage
Heeft kabel-tv
Ja
Glasvezelaansluiting aanwezig
Ja
Tuin aanwezig
Ja
Heeft een garage
Ja
Heeft een jacuzzi
Ja
Heeft schuur/berging
Ja
Heeft een schuifpui
Ja
Heeft zonnepanelen
Ja
Heeft ventilatie
Ja

Kadastrale gegevens

Kadastrale aanduiding
Budel F 3783
Perceeloppervlakte
460 m²
Omvang
Geheel perceel
Eigendomsituatie
Eigen grond
Kadastrale aanduiding
Budel F 4407
Perceeloppervlakte
325 m²
Omvang
Geheel perceel
Eigendomsituatie
Eigen grond

Brochure(s) en overige bijlagen

Brochure - Maarheezerweg 5 - Budel.pdf Download
Label.pdf Download