Verkocht:Grensweg 40, 6021 JX Budel - Foto
Verkocht
+43

Grensweg 40 6021 JX Budel

  • Woonhuis
  • 5 kamers
  • 4 slaapkamers
  • 1 badkamers
  • Bouwjaar 1979
  • 1.449 m² perceeloppervlakte
  • 186 m² gebruiksoppervlakte
  • C Energielabel C

Beschrijving

Algemeen:

Op een riant perceel van ruim 1.400 m² vindt je deze vrijstaande villa met inpandige garage en parkachtig aangelegde tuin. Deze degelijk gebouwde woning (1979) beschikt o.a. over een ruime woonkamer, 4 slaapkamers en een royale kelder. Energielabel C.
Goede bereikbaarheid t.o.v. Brainport Eindhoven en de steden Weert en Roermond.

Indeling:

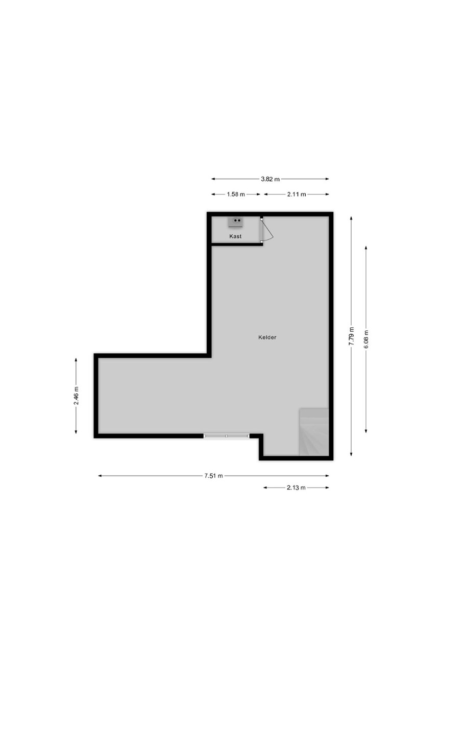
Kelder
Kelderruimte op stahoogte met tegelvloer en verwarming.

Begane grond
Ruime ontvangsthal met vide en trapopgang naar de 1e verdieping; toiletruimte met wc en fonteintje; riante L-vormige woonkamer met open haard en een brede schuifpui met toegang tot het terras; keuken v.v. een keukeninrichting met inbouwapparatuur; portaal met deur naar de tuin; garage v.v. witgoedaansluitingen en een elektrisch bedienbare sectionaalpoort. In de garage bevindt zich tevens de grondwaterpomp.

1e verdieping
Overloop; 4 slaapkamers waarvan 1 v.v. inbouwkast; betegelde badkamer v.v. een douchecabine, meubel met wastafel, wc en bidet; 2x balkon.

2e verdieping
Zolderberging te bereiken middels een houten schuiftrap vanaf de overloop. Hier bevindt zich de CV HR combiketel (ca. 2010).

Buiten:

Rondom de woning is een prachtige parkachtige tuin aangelegd. Hierin vindt je borders met aanplant, gazon en terrassen. Aan de voorzijde zorgt een sierhekwerk met elektrische poort voor en statige uitstraling.

Bijzonderheden:

- Energielabel C;
- Dak-, vloer- en spouwisolatie aanwezig;
- Houten kozijnen;
- Begane grond deels v.v. vloerverwarming;
- Airconditioning aanwezig;
- 4 slaapkamers;
- Dakpannen vernieuwd in 2023;
- Schilderwerk buiten uitgevoerd in 2023;
- Deze degelijk gebouwde woning is gelegen nabij het medisch centrum Budel, sportpark, het gezellige centrum van het dorp en uitvalswegen. Steden als Eindhoven, Weert en Maastricht zijn gemakkelijk te bereiken;
- Snelle aanvaarding mogelijk.

Kaart

Kenmerken

Overdracht

Referentienummer
00192
Vraagprijs
€ 749.000,- k.k.
Status
Verkocht
Aanvaarding
In overleg
Aangeboden sinds
Vrijdag 19 september 2025
Laatste wijziging
Woensdag 3 december 2025

Bouw

Type object
Woonhuis, villa, vrijstaande woning
Soort bouw
Bestaande bouw
Bouwperiode
1979
Dakbedekking
Dakpannen
Type dak
Zadeldak
Isolatievormen
Dakisolatie
Muurisolatie
Vloerisolatie

Oppervlaktes en inhoud

Perceeloppervlakte
1.449 m²
Woonoppervlakte
186,2 m²
Inhoud
936 m³
Oppervlakte overige inpandige ruimten
76 m²
Oppervlakte gebouwgebonden buitenruimte
18,1 m²

Indeling

Aantal bouwlagen
3 (en 1 kelder)
Aantal kamers
5 (waarvan 4 slaapkamers)
Aantal badkamers
1 (en 1 apart toilet)

Locatie

Ligging
Aan drukke weg

Tuin

Type
Tuin rondom
Oriëntering
Noorden
Heeft een achterom
Ja
Staat
Prachtig aangelegd

Energieverbruik

Energielabel
C

CV ketel

Warmtebron
Gas
Bouwjaar
2010
Combiketel
Ja
Eigendom
Eigendom

Uitrusting

Warm water
CV-ketel
Verwarmingssysteem
Airconditioning
Centrale verwarming
Open haard
Vloerverwarming (gedeeltelijk)
Keukenvoorzieningen
Inbouwapparatuur
Badkamervoorzieningen
Bidet
Douche
Toilet
Wastafel
Wastafelmeubel
Parkeergelegenheid
Inpandige garage
Heeft airco
Ja
Heeft kabel-tv
Ja
Heeft een open haard
Ja
Heeft een rookkanaal
Ja
Glasvezelaansluiting aanwezig
Ja
Tuin aanwezig
Ja
Heeft een garage
Ja
Heeft een schuifpui
Ja

Kadastrale gegevens

Kadastrale aanduiding
Budel C 2933
Perceeloppervlakte
1.449 m²
Omvang
Geheel perceel
Eigendomsituatie
Eigen grond

Brochure(s) en overige bijlagen

Brochure - Grensweg 40 - Budel.pdf Download
Label.pdf Download